February 2011 Wood News Online Welcome to Highland Woodworking - Fine Tools & Education Learn more about Highland Woodworking View our current woodworking classes and seminars Woodworking articles and solutions Subscribe to Wood News



Here's My Workshop!

by Michael Curtis
Columbia, SC

I designed and built this workshop with my wife, Tonya, in the summer of 2007. The exterior of my shop was designed to blend in with the house and neighborhood. The shop can be converted to a guest house, play room or pool house at a later date. The diminsions of the shop are 25' x 32', and it is heated with 10' ceilings and attic storage with a pull down ladder. The exterior is vinyl siding with aluminum flashing. The columns are fiberglass. The shingles are architectural shingles.

There is a washroom and a storage closet housing the compressor, dust collection cyclone and a lot of tools, hardware and miscellaneous junk. The walls are a board and batten design. The battens are nailed right to the studs so finding a stud is never a problem. Even though the latest fad is to use wallboard for shop interior walls, I feel like wallboard isn't durable enough for a shop. One bang with a board and you have a big divet!

woodworking tools
These 4' X 8' carriage doors are hand built. They
are insulated and sturdy. They provide an
opening for loading equipment and lumber.
woodworking tools
The main room of the shop from
the foyer. The inside shop is 25' x 32' and
has 800 square feet.
woodworking tools
The main room of the shop from the foyer looking to the left.
woodworking tools
Another view of the main room of the shop from in front of the lathe.
woodworking tools
Another view of the main room of the shop from in front of the drill press.
woodworking tools
The new lumber rack, with a space for sheet goods storage.
woodworking tools
This is a workbench I built in my garage when I first moved into this house. I threw it together in about a day to give me a place to work on the renovations to my house. It ain't pretty, but it's as solid as a rock. Today, I use it for most of my finishing work.
woodworking tools
The bottom drawer holds my supply of turning stock. The 100# slides make it pretty easy to open and close the drawer. But the bench has to be screwed to the wall to prevent it from tipping over when the drawer is fully opened.
woodworking tools
This shop made downdraft table is connected to the dust collection system. It is very effective at sucking up the dust from sanding.
woodworking tools
The tool cabinet holds cordless tools and chargers, handplanes, sharpening tools and saw blade storage in the bottom.

woodworking tools
This is my main workbench. It is 8 feet long and 30 inches wide. The table top is 36 inches from the floor. This is where I do most of my hand tool work, inlay work and some glue ups. I built in a couple of large storage drawers to hold my power tools.
woodworking tools
My auxillary workbench is used to hold tools and materials I'm not immediately using. The purpose is to help prevent my main workbench from cluttering up. When I'm working, I stand between the main and auxillary workbenches. This puts 95% of what I need within easy access.
woodworking tools
The ductwork for the dust collection system runs out of the storage room, through the wall above the lathe. It branches off a spur to handle the table saw, planer and jointer. The main line circles around the walls all the way around to the miter saw.
woodworking tools
The store room has nearly wall to wall and ceiling to floor shelves. And STILL I manage to fill them up. My wife scribbled me a note one time where she called me a packrat. Hmm... I think that note is on the third shelf on the right.
woodworking tools
The Sharpening Station and Scroll Saw are the two most recent additions to the shop. I use the sharpening station to sharpen lathe chisels, plane irons, chisels and whatever else needs sharpening. The scrollsaw is my daughter's favorite tool, and will soon have a stand with drawers, a magnifying glass and a slightly larger table.
woodworking tools
The shop is wired with 200 amp service. All machines have a dedicated circuit including the HVAC and those machines that run on 110 volts like the router table, compressor, miter saw and drill press. In addition, there are four individual
15 amp receptacle circuits and three separate circuits for the lighting.
woodworking tools
A better view of the new lumber rack, which doubled my lumber storage over the last one.
woodworking tools
This is where I'll dream up
new projects to build.
woodworking tools
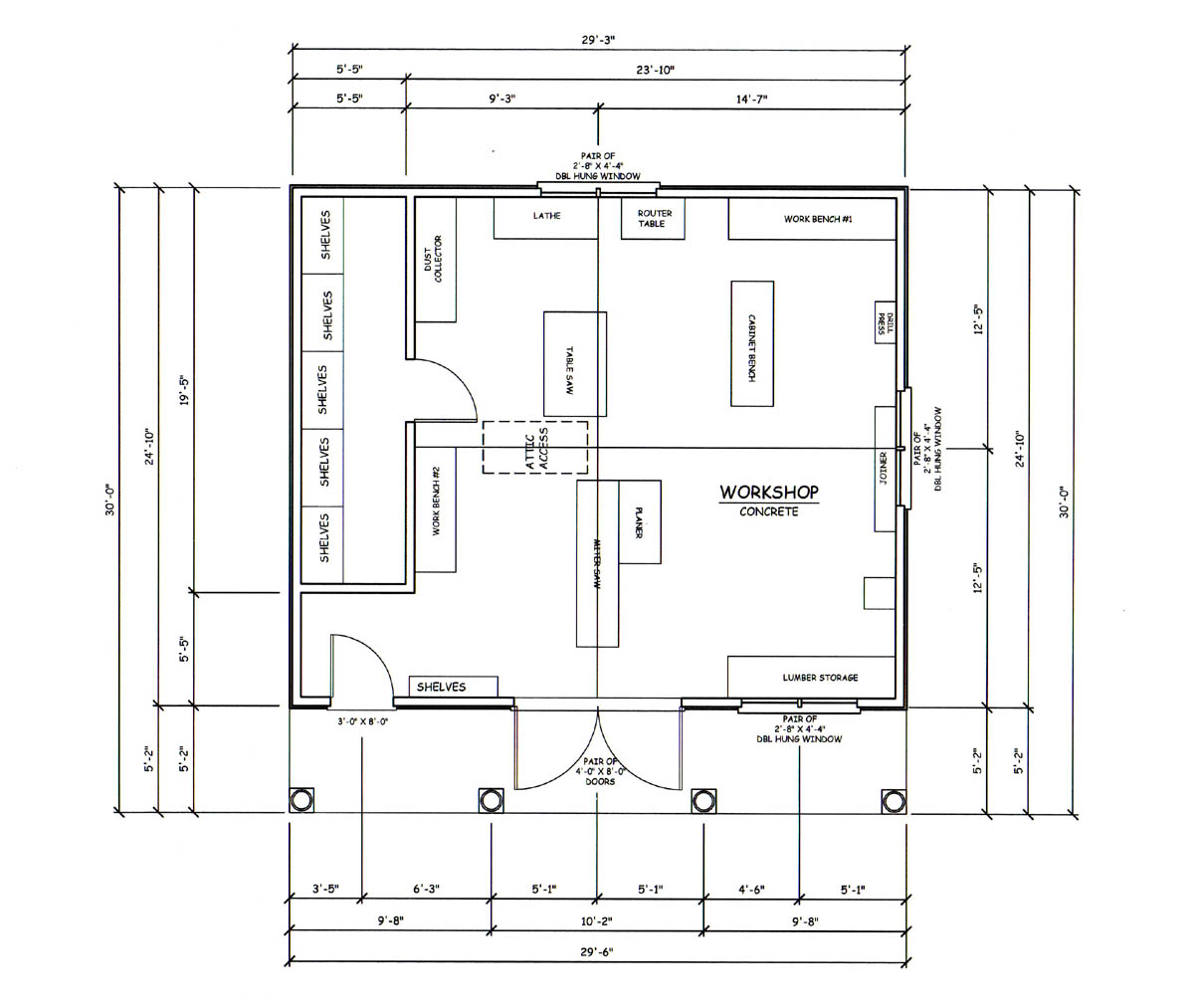
A Close approximation of the layout of the machines.
woodworking tools
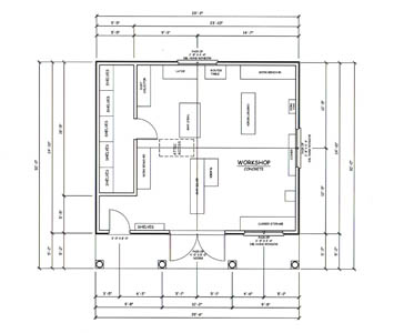
My wife's floor plan design.





Michael can be reached via email at mcurtis@curtis-home.net .


Return to Wood News front page
See Previous Newsletters Subscribe to our Newsletter

Copyright © 2011 Highland Woodworking, Inc.

Highland Woodworking | 1045 N. Highland Avenue, NE | Atlanta | GA | 30306 | 404.872.4466

www.highlandwoodworking.com

www.woodnewsonline.com