Designing a Work Bench with SketchUp

By Sean Headrick
San Jose, California
The traditional style workbench we will draw in this month's article is designed to utilize standard framing lumber, with "half-lap" style joinery to make up the base structure. The work surface uses prefabricated butcher block counter tops available from your local "Swedish home goods mega-store" to make a durable, stable bench top at an economical price. To finish, we will outfit the bench with a front vise and cabinet storage to keep all your tools organized and close at hand.

Legs

All the parts of the workbench base are made from standard framing lumber. I have used 2x4s as they seem to suit the scale of my bench. You could use larger lumber employing the same methods if you feel a bit more heft in the design would better serve your needs.

Start with the rectangle tool , drawing a rectangle 1-1/2" x 20-3/4". With the push/pull tool , raise the face 3-1/2" (the width of a 2x4). Create construction guides on the wide face 2" from either end. From each of those two guides make two more guides 3-1/2" in. This is going to be the location of the lower leg joint. Draw rectangles at both of these joint locations and push/pull in 3/4". This makes one half of the half-lap joint. With the line tool draw a line that will determine the chamfer on both ends of the foot and push/pull these areas away to create the chamfer profile. This completes one half of one foot. Select the entire foot by triple clicking on it, right click and choose Make Component from the menu. You can simply press "create" and not worry about all the options in the dialog box. With the foot component selected, move a copy over several inches. With the copy selected now, choose your scale tool . Using one of the grips located at the center of the face of the foot, scale the foot to a value of (-1). This should result in a part that is a mirror image of your original part. Using the move tool, click on an edge point of your foot that you can place on the corresponding location on its mating part. You should now have a completed foot. Select both halves of the foot and move a copy of them over approximately 40". Now select all four foot components and move a copy up in the blue axis direction. With all four copies selected, use the scale tool to scale to a value of (-1) in the blue direction. This will make the upper supports for your table top. With all four copies still selected, right click and choose "Make Unique" from the menu. This makes new components of those selected, separate from the original four. Any changes you make to these components will have no effect on their "foot" counterparts.

Double click one of the foot components. You will see that most of the model has faded, indicating you are in the edit mode. Viewing the foot from the bottom, draw a rectangle in the middle of the foot that you can push/pull in 1/2" or so to create pads for the feet to sit stable upon on unlevel ground. By editing one foot, the change should occur on all instances of that component. Draw a guide 33-3/4" up from the point where the feet rest on the ground plane. This will be the top of the table supports and the underside of the 2-1/4" top, giving you a 36" finished work height. You can adjust this height as you see necessary.

Select all four table top supports, and using the move tool, move them up to the height you laid out with your construction guide. With the feet and table supports complete, we will make the legs that will support the tool cabinet. Looking at the top of one of the feet, draw a rectangle 1-1/2" x 3-1/2" over one of the half lap joints you created earlier. Push/pull this face up to the bottom of your table supports. To create the mating part of your joints, select a view that allows you to look down into the mortise in the table supports. Draw a line where the edge of the joint in your table support intersects with the center line of your vertical support. Now push/pull the visible half of the vertical support up to the top of the upper support completing the half lap joint. Repeat for the bottom of the vertical support. Once you have completed the upper and lower joint, triple click the vertical support to select the entire part, right click and make it a component. The process for copying and flipping is the same as used for the feet and table supports. Copy and scale to make one complete leg support. Then choose both leg halves and move copies to the other three leg locations.

Cabinet

The cabinet and stretchers work together in this design to keep the workbench from racking to either side under a load. If you are not going to have a cabinet in your bench, I would probably recommend using 2x10s or 2x12s for the lower stretchers.

Double click one of the vertical supports to edit. The bottom of the lower stretcher is 5" from the top of the foot of the bench, so I make a construction guide to determine this measurement. From there I create another guide 3-1/2" higher (the width of my stretcher). Using the line tool, draw a line where each of the construction guides cross the vertical support you are editing. Then push/pull the face in 3/4" to make one half of the joint where the stretcher will be located. You should see that the other instances of that component in your model were also modified, creating recesses for both of your lower stretchers/cabinet supports. Use the rectangle tool to make one of the stretchers with the joint details using similar techniques discussed earlier. For the upper stretcher, locate a recess on the bottom of the table top supports midway between the vertical leg supports. Select one of the lower stretcher components and move a copy to the location of the upper stretcher. With the move tool, hover over the end of the stretcher component. You will see grips appear enabling you to rotate the stretcher to the proper orientation. Once rotated, move the part into its final location seated in the lap joint on the underside of the table top supports.

With all the stretchers in place, draw a rectangle for the bottom of your tool cabinet. Push/pull the face up 3/4", select all and make component. This represents the top and bottom of the cabinet. With the move tool, and the cabinet bottom selected, click once on the cabinet bottom. Move a copy in the blue direction. While moving in the blue direction, hold down the shift key. This will lock you in that direction so you can move your cursor to the bottom edge of the upper stretcher, and click again to place the copy. You should see the copy is placed flush against the bottom of the upper stretcher. Create the sides and middle divider for your cabinet in the same way. The cabinet I designed is divided roughly into thirds with the drawers taking up two-thirds, and the cabinet using one third.

Drawers

To begin the drawers, start by drawing a line on the inside front edge of the cabinet side. Right click on the line and choose "Divide" from the menu. Move up and down to change the number of line segments to create. I divided the line into four segments. Use the height of the bottom line segment to draw a rectangle across the opening where the drawer will be located. With the offset tool on the face, offset a rectangle 1/2" in from the edge. Select and delete the line you drew in the first step along with the other three lines that made up the rectangle you drew in the next step. You should now have a face that is approximately one quarter the height of the opening and 1" narrower than the width, to allow for standard full extension ball bearing drawer slides. Push/pull the face into the opening 1/2" to complete the drawer front. Make it a component and move a copy to create the back of the drawer. You will need to scale the drawer back so the inside face of the drawer faces in. This is so that when you make the dado for the drawer bottom, it is on the inside face of the back of the drawer box. Make the side of the drawer between the drawer front and drawer back the same way. Make it a component. Move a copy and scale to make the other side. Edit the drawer parts by making a 1/4" dado 1/4" to 3/8" from the lower edge for a 1/4" plywood bottom. Use the rectangle tool, and push/pull to make the plywood bottom. Make the drawer bottom a component. Once you have finished the entire drawer, select all of the drawer parts and make them a component. You can now move a copy of the complete drawer box to the top location, then press "/3" then enter. This will place two more copies equally between the top and bottom drawer. once your drawers are done, use a similar technique to make the drawer fronts and the cabinet door.

Work Surface

The work surface for this table is made up of two pieces of butcher block counter top laminated together. Alternatively, a number of companies offer a large variety of workbench slabs.

The process of modeling the top is pretty straightforward. Draw a rectangle from one upper support to the other. Push/pull the face up to the thickness of your work surface. The prefab counter tops I detail in my model are 1-1/8"thick. Push/pull out to either side about 14" and 2" to the front and back. Triple click to select the whole top and make it a component. Move a copy up, doubling the thickness of the work surface. The front vise I use in the model is the Anant no. 53 available at Highland Woodworking. There is a model herein the 3D Warehouse . Download the vise to your model and edit your bench top to mount the vise flush with the front edge. I also added some dog holes in line with the front vise for clamping larger parts. This three point clamping design will allow you to hold round or irregular shaped parts.

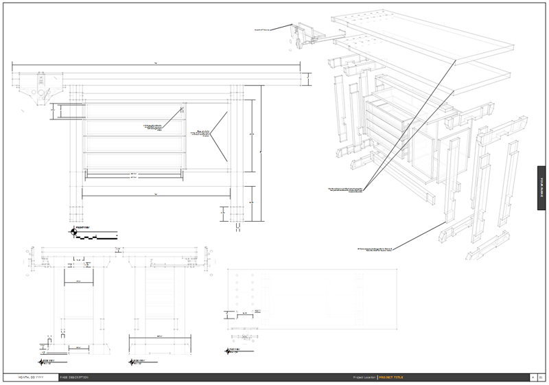
Construction Drawings

For this workbench I have attached a PDF file that you can download to a flash drive or CD and take to a print shop for a full set of measured drawings for you to use in the work shop. You may find these files difficult to view on your computer because of the fine line weight of the drawings, but I believe they are appropriate for the full size prints (24" x 36"). These were created in LayOut, which is a program used for presentation of SketchUp models, and comes as part of the SketchUp Pro package. As most of you probably use the free version, I am not going to offer any direction on how to use LayOut. However each of the future projects we build will be accompanied by these measured shop drawings. I have tried to include most of the measurements required, and over time I will refine the details in these documents to make them as organized and informative as I can.

As always, feel free to send me an email with any comments, questions, or suggestions.



Previous Wood News articles about using Free SketchUp Design Software:

SketchUp: 3D Modeling for Woodworkers

Creating Turned Models with SketchUp, Part 1

Creating Turned Models with SketchUp, Part 2

Using SketchUp to Design Your Workshop

3-D Furniture Design Using SketchUp, Part 1

3-D Furniture Design Using SketchUp, Part 2

Build a Toolbox: From SketchUp to CNC Machine

Take SketchUp to the Next Level with Ruby Plugins

How to Plan a Kitchen Renovation Using SketchUp, Part 1

How to Plan a Kitchen Renovation Using SketchUp, Part 2



Sean Headrick, a former Atlantan once seen frequently at Highland Woodworking, now lives in San Jose, California where he does woodworking and design. His website is www.headrickdesigngroup.com . Sean was interviewed by Wood News in 2007.


Return to Wood News front page


Bookmark and Share

See Previous Newsletters Subscribe to Our Newsletter

Copyright © 2010 Highland Woodworking, Inc.

Highland Woodworking | 1045 N. Highland Avenue, NE | Atlanta | GA | 30306 | 404.872.4466

www.highlandwoodworking.com

www.woodnewsonline.com